PROJECTS
BUREAU
CONTACTS
RUS
ENG
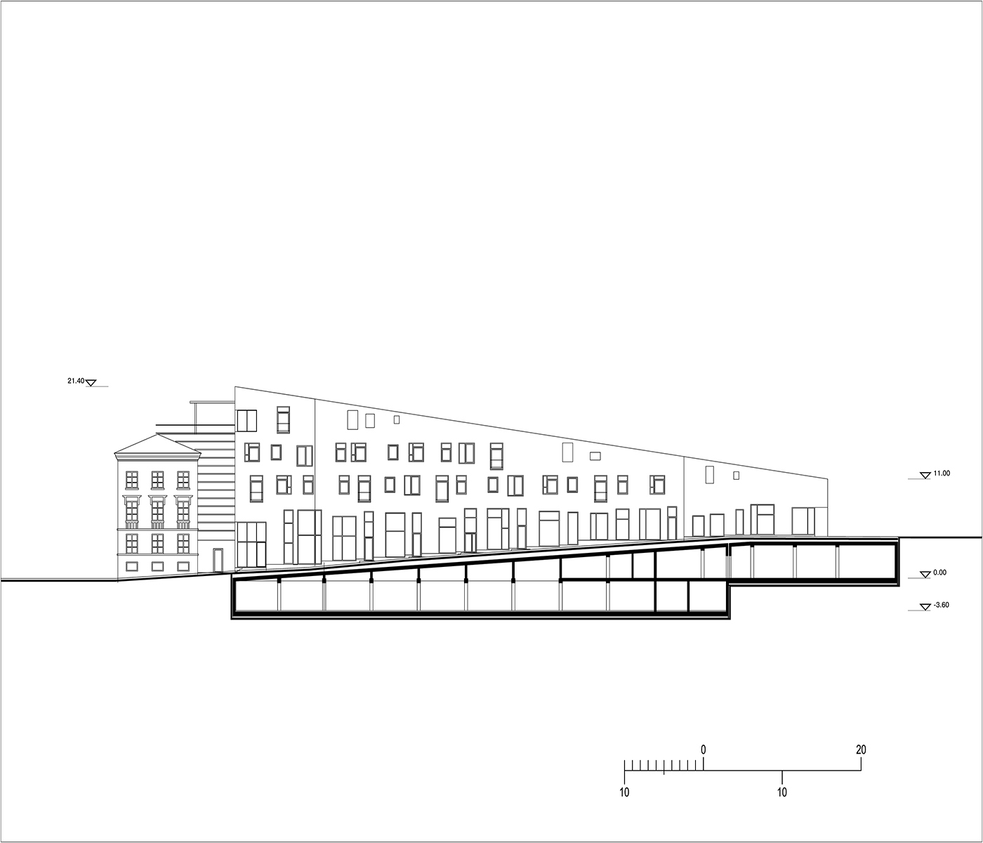
Shopping mall in Sebastople
Ukraine, Sebastople, Aivazovskogo st., 3
Client: "Pragma" LLC
Bureau: AM "SKiP"
Design: 2009
Total area: 12630 sq.m