PROJECTS
BUREAU
CONTACTS
RUS
ENG
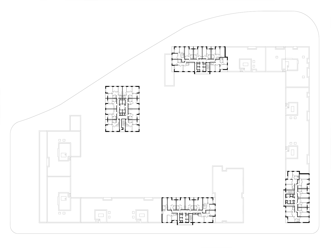
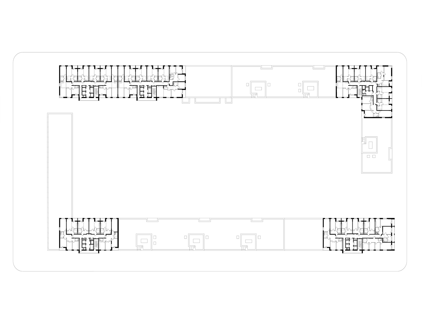
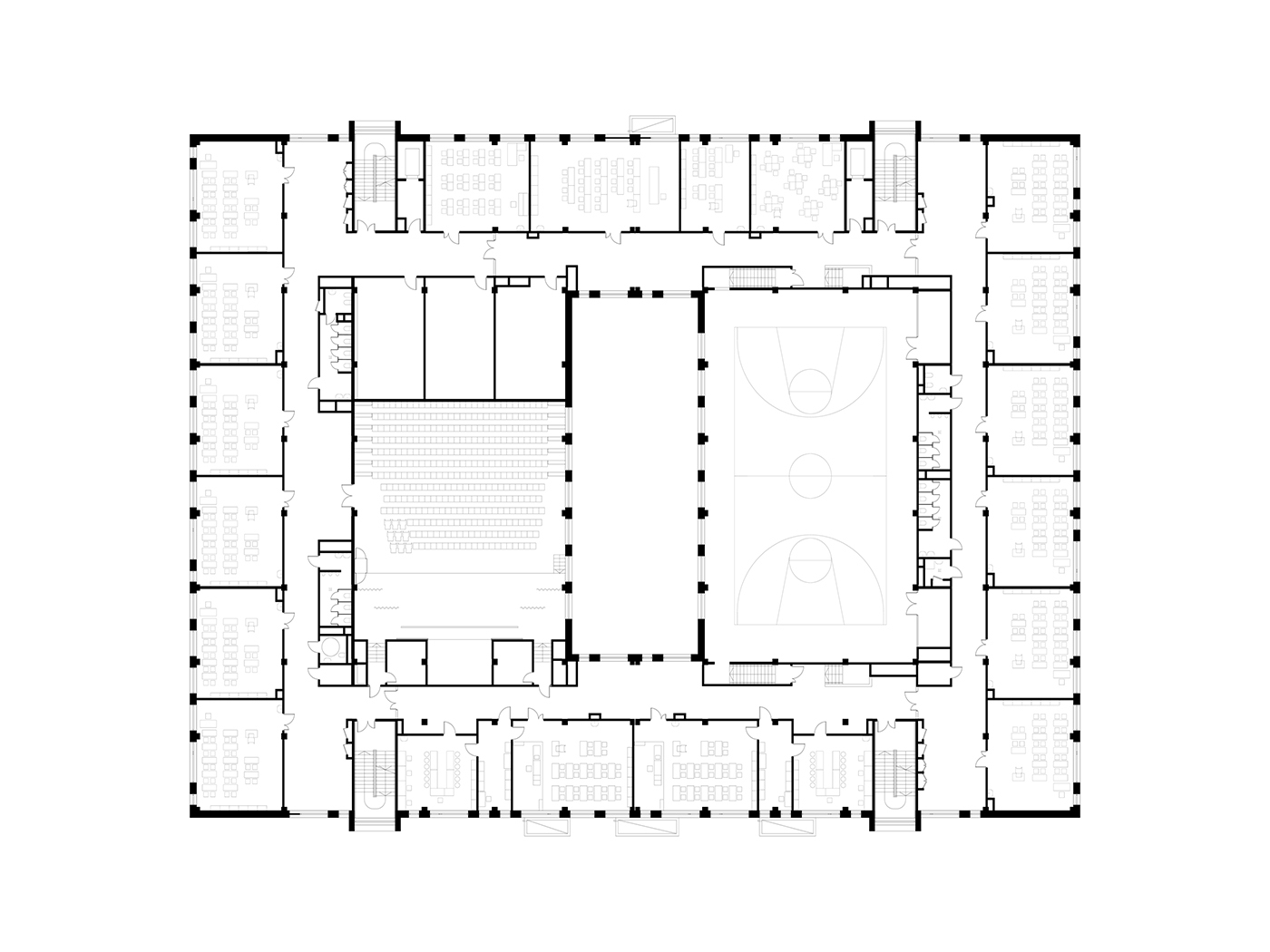
Residental area
Russia, Moscow, Tagilskaya st.,8
Client: AFI-Development
Bureau: AM "SKiP"
Design: 2014-2018
Constructing is in process.
Total site area: 12.93 ha
Total area: 351140 sq.m